Intensivpflege-Wohngemeinschaft in Bischoffen am Aartalsee

Unsere neue Intensivpflege-Wohngemeinschaft in Bischoffen bietet Menschen mit intensivpflegerischem Bedarf ab Spätsommer 2026 ein Zuhause, das medizinische Sicherheit mit einer einzigartigen Lage verbindet. Direkt am Aartalsee gelegen, schaffen wir einen Ort der Geborgenheit, der weit über die Atmosphäre einer klassischen Pflegeeinrichtung hinausgeht.

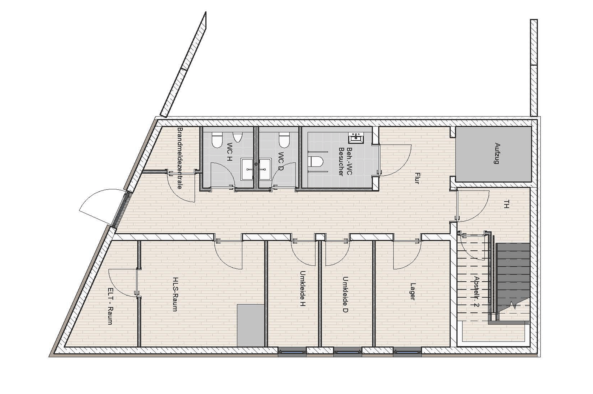
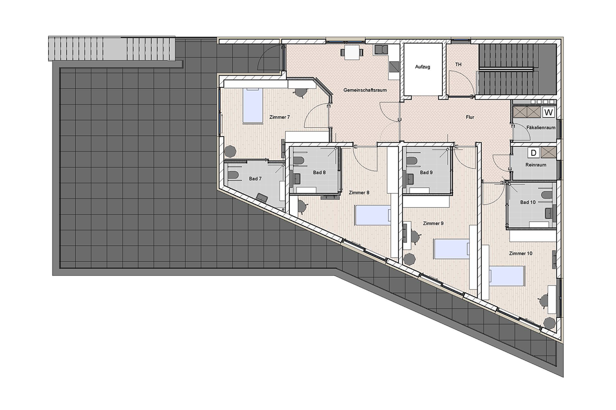
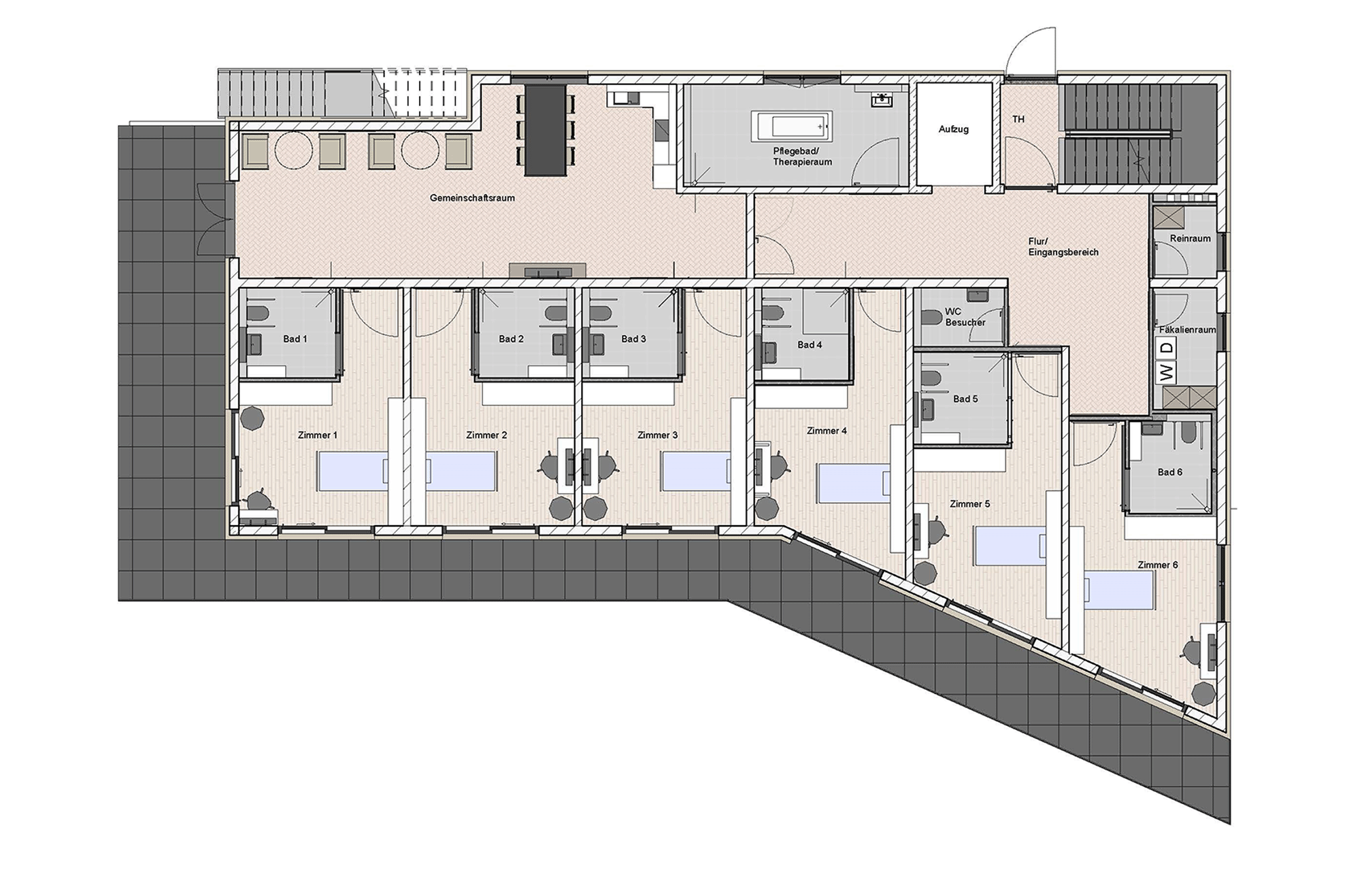
Das moderne Gebäude beherbergt zwei eigenständige, kleine Wohngruppen, die sich über zwei Etagen erstrecken. In naturnaher und ruhiger Umgebung bieten wir Platz für insgesamt zehn Bewohner*innen, aufgeteilt in eine 6er- und eine 4er-WG. Diese kleine Struktur ermöglicht ein besonders persönliches Miteinander. Jede Person verfügt über einen eigenen, barrierefreien Wohnbereich, der individuell gestaltet werden kann. Großzügige Gemeinschaftsbereiche und eine moderne Wohnküche in jeder Einheit dienen als zentraler Treffpunkt für Begegnungen und ein selbstbestimmtes Leben in Gemeinschaft.

Ein besonderes Highlight der Architektur ist das durchdachte Raumkonzept, das modernste medizinische Infrastruktur integriert, ohne dabei den wohnlichen Charakter zu verlieren. Dank des 1:3-Stellenschlüssels und des Prinzips der Bezugspflege gewährleisten wir eine intensive Betreuung mit viel Nähe, Sicherheit und Verantwortung.

Als moderner Neubau wurde das Gebäude exakt für die Anforderungen der außerklinischen Intensivpflege konzipiert und setzt höchste Maßstäbe an Sicherheit und Komfort:

  • Neubau einer modernen Intensivpflege-Einrichtung mit zwei separaten, familiären Wohngruppen (6 und 4 Plätze).
  • Insgesamt 10 großzügige Einzelzimmer mit viel Licht und einer freundlichen Atmosphäre.
  • Jedes Zimmer verfügt über ein eigenes barrierefreies Badezimmer mit Dusche.
  • Bodentiefe Fenster für einen freien Blick direkt auf den Aartalsee und in die Natur.
  • Zusätzliches Pflegebad und ein spezieller Therapieraum im Haus.
  • Komplett barrierefreie Architektur mit barrierefreien Zugängen im gesamten Gebäude.
  • Moderner Aufzug inklusive Bettenbeförderung für maximale Mobilität.
  • Großzügige Terrassen- und Aufenthaltsbereiche, die natürlich ebenfalls barrierefrei zugänglich sind.

Die Lage in Bischoffen

Mitten im Grünen des Lahn-Dill-Kreises liegt die Gemeinde Bischoffen. Die neue Wohngemeinschaft befindet sich in einer besonders reizvollen, naturnahen und ruhigen Lage direkt am Aartalsee – mit einem unverbaubaren Blick auf das Wasser.

Trotz der idyllischen Lage im Grünen bietet die Gemeinde eine gute Infrastruktur und ist harmonisch in die Landschaft Mittelhessens eingebettet. Die Umgebung bietet zahlreiche Möglichkeiten zur Erholung und Freizeitgestaltung: Besonders der direkt angrenzende Aartalsee lädt mit seinen barrierefrei zugänglichen Wegen zu Spaziergängen in der Natur und am Wasser ein.

Die Intensivpflege-WG ist sehr gut erreichbar:

Über die verkehrsgünstig gelegene Bundesstraße B255 und die nahegelegene Autobahn A45 gelangen Besucher schnell und unkompliziert nach Bischoffen. Die medizinische Versorgung ist durch die enge Zusammenarbeit mit regionalen Kliniken, Ärzt*innen und Therapeut*innen jederzeit sichergestellt.

Die Wohngemeinschaft profitiert von einer guten Anbindung an lokale Angebote:

In der Gemeinde Bischoffen und der unmittelbaren Umgebung finden sich alle wichtigen Angebote für den täglichen Bedarf:

  • Einkaufsmöglichkeiten und Nahversorgung
  • Gastronomieangebote rund um den Aartalsee
  • Lokale Dienstleister
  • Anbindung an regionale Therapeuten-Netzwerke

Durch die Kombination aus absoluter Ruhe am See und der schnellen Erreichbarkeit bietet der Standort am Heideblick eine ideale Umgebung für ein würdevolles Leben in Gemeinschaft.

Kooperationspartner

Wir freuen uns über die erfolgreiche Zusammenarbeit mit unserem Kooperationspartner,
der ambulanten Intensivpflege Mittelhessen GmbH.